Unsere Vorteile

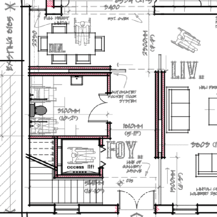
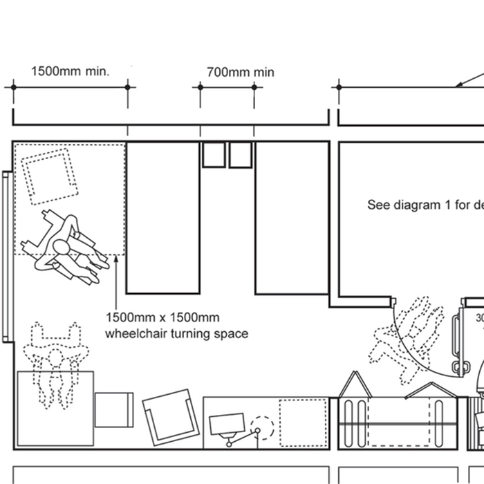
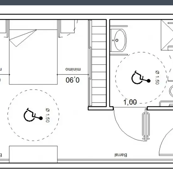
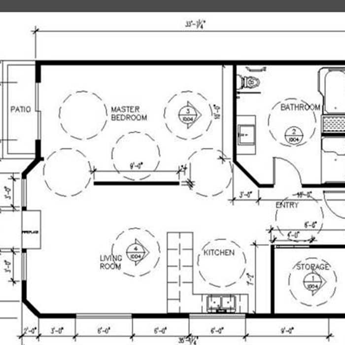
Garantiert Barrierefrei

Verschaff Dir durch bemaßtes Bildmaterial schon bei der Planung die Sicherheit, dass Deine Unterkunft zu Dir passt.

Stressfreier Aufenthalt

Gestalte & vergleiche Deine Reisemöglichkeiten für einen stressfreien und preiswerten Aufenthalt.

Tips & Tricks

Umfangreiche Tips & Tricks für das barrierefreie Sightseeing vor Ort.

desti

Unsere beliebtesten
Orte

desti

Garmisch-Partenkirchen

desti

Bodensee

desti

Usedom

Grundrisse für alle
unsere Unterkünfte verfügbar

insta
insta
insta
insta
insta
insta
insta

So funktioniert's

1.

Unterkunft aussuchen

Filtere unsere Reiseangebote nach deinen persönlichen Anforderungen


2.

Unterkunft auswählen

Schau dir die Angebote von unseren Parnter-Unterkünften ganz genau an. Hierzu stellen wir dir 3D Modelle und detailliertes Bildmaterial zur Verfügung.

3.

Urlaub genießen

Buche und verwalte deine barrierefreie Reise bei uns und profitiere von unseren Informationen rund um die barrierefreie Anreise und Aktivitäten.

Buchen Sie jetzt zu jeder Unterkunft unseren 24/7 Reisesupport!

Was Kunden über uns sagen

Das Feedback unserer Kunden fließt konsequent in die Verbesserung unseres Angebots ein, um Dir einen rundum sorgenfreien Urlaub an jedem unserer Urlaubsziele zu garantieren.

Als Rolli-Fahrer soll Reisen wenig Organisation brauchen, aber immer was verrücktes zum Erzählen geben! Und es sollte nicht immer die Geschichte sein, dass ich die Badezimmertür aushängen musste, um aufs Klo zu können.

image

Felix

38, München

Es sollte auch selbstvertständlich sein, dass auf meine Bedürfnis mich sicher am Urlaubsort zu fühlen besonders eingegangen wird. Wir spüren das bei Marco Rolo auf jeder Reise.

image

Evi

24, Berlin

Der 24/7 Service war super hilfreich. Als Abends die Bahn zum Hotel nicht fuhr, konnte mir so schnell die Nummer vom Rollstuhltaxi vor Ort organisiert werden.

image

Frank

33, Stuttgart